Building land for single or semi-detached villa

for sale
Sites / Plots for Development
Montignoso (Cinquale)
Price on demand
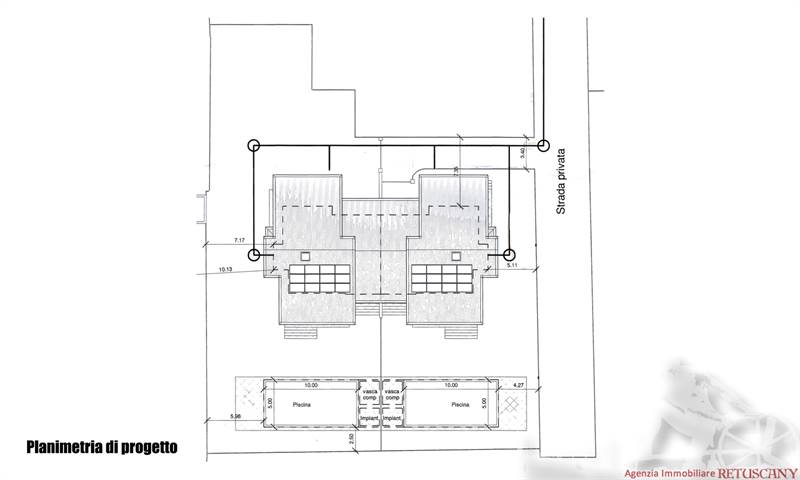
Description
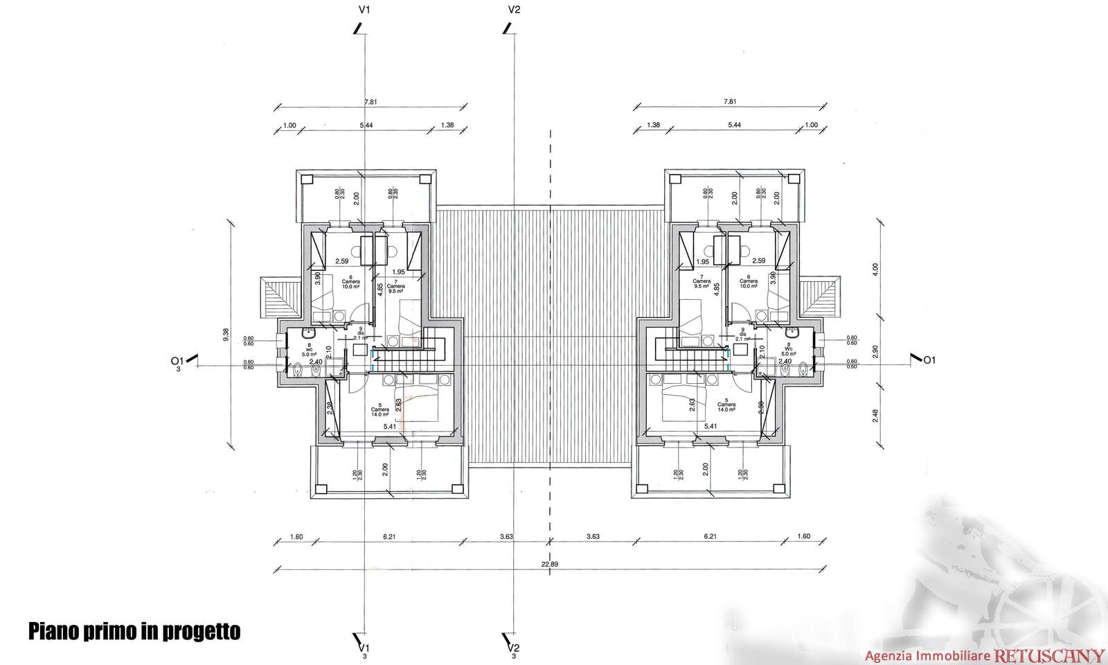
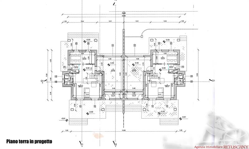
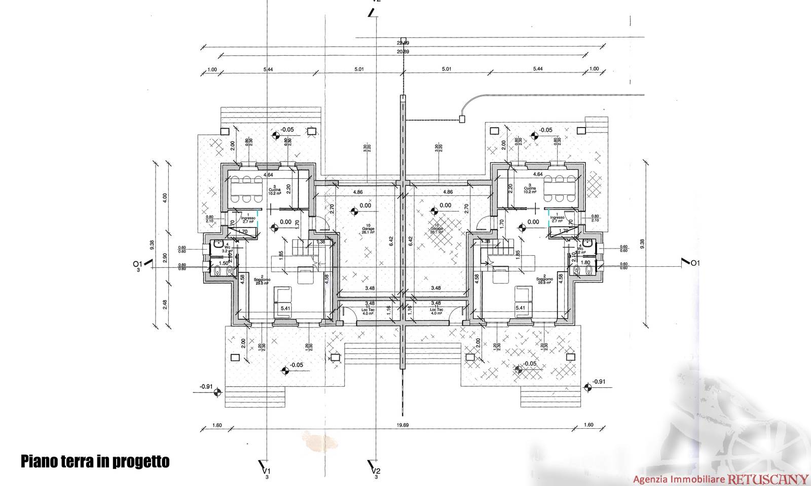
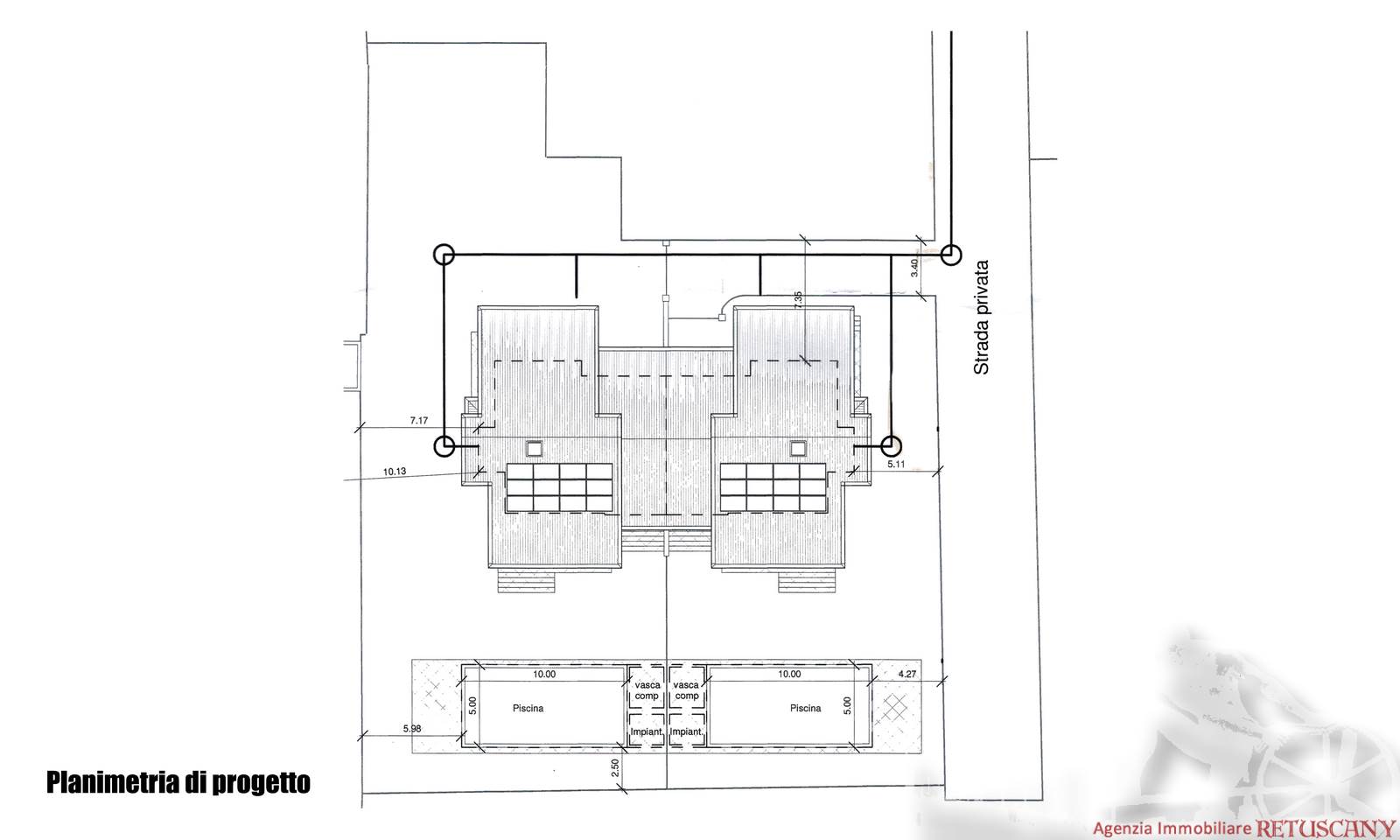
Building lot of more than 1,250 sqm on which the construction of a single-family or semi-detached villa is permitted. The lot is currently undergoing a request for a Building Permit for a semi-detached villa spread over two floors above ground, with a total of 225 square meters of living space, as well as two 30 square meter units per garage and two technical rooms of approximately 5 square meters each, for a total of approximately 295 square meters of construction. For each dwelling, the construction of a swimming pool is also permitted in compliance with the ratios of permeable surfaces. With the possibility of freely varying the project in progress without design constraints imposed by the selling party.
Primal Features
Code:
V003305
City:
Montignoso (Cinquale)
Category:
Sites / Plots for Development
Locals:
1
Sqm:
1
Energetic class:
Nondescript
Rank:
Elegant
Position:
See
View:
Open View
Accessories
Independent Entrance
Information request
Send
Cookie preference