NOSTRA ESCLUSIVA: Complesso immobiliare unico nel suo genere

In vendita
Villa
Ameglia (Costa)
Prezzo riservato
Descrizione
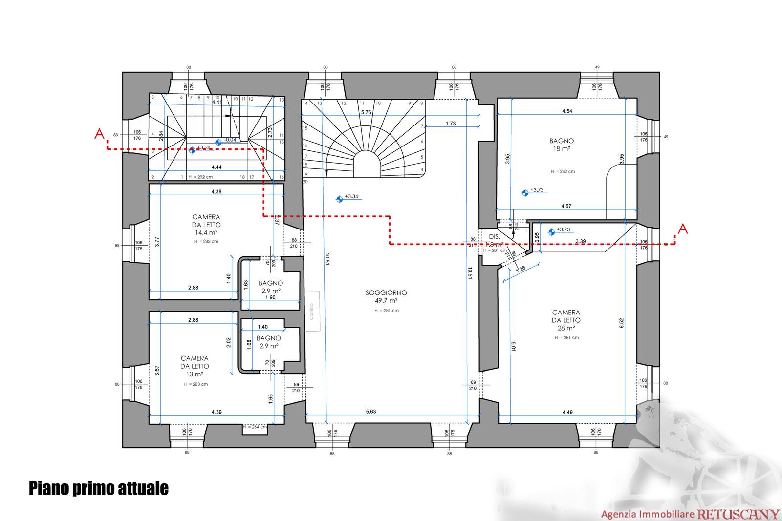
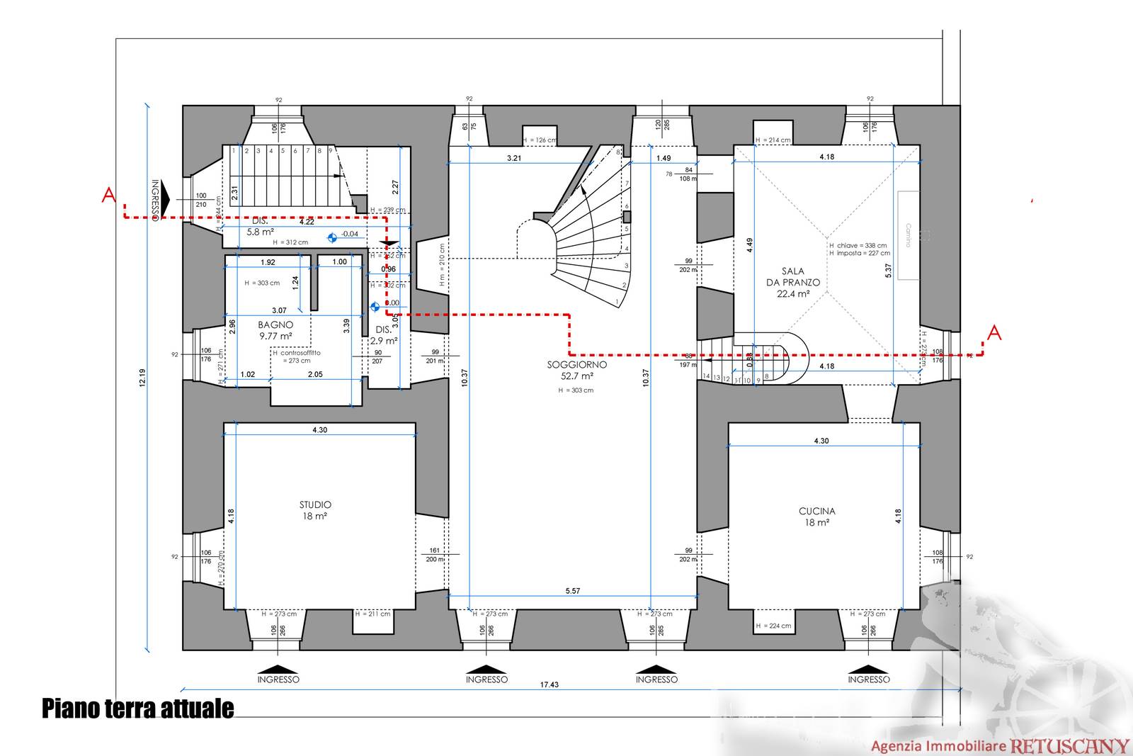
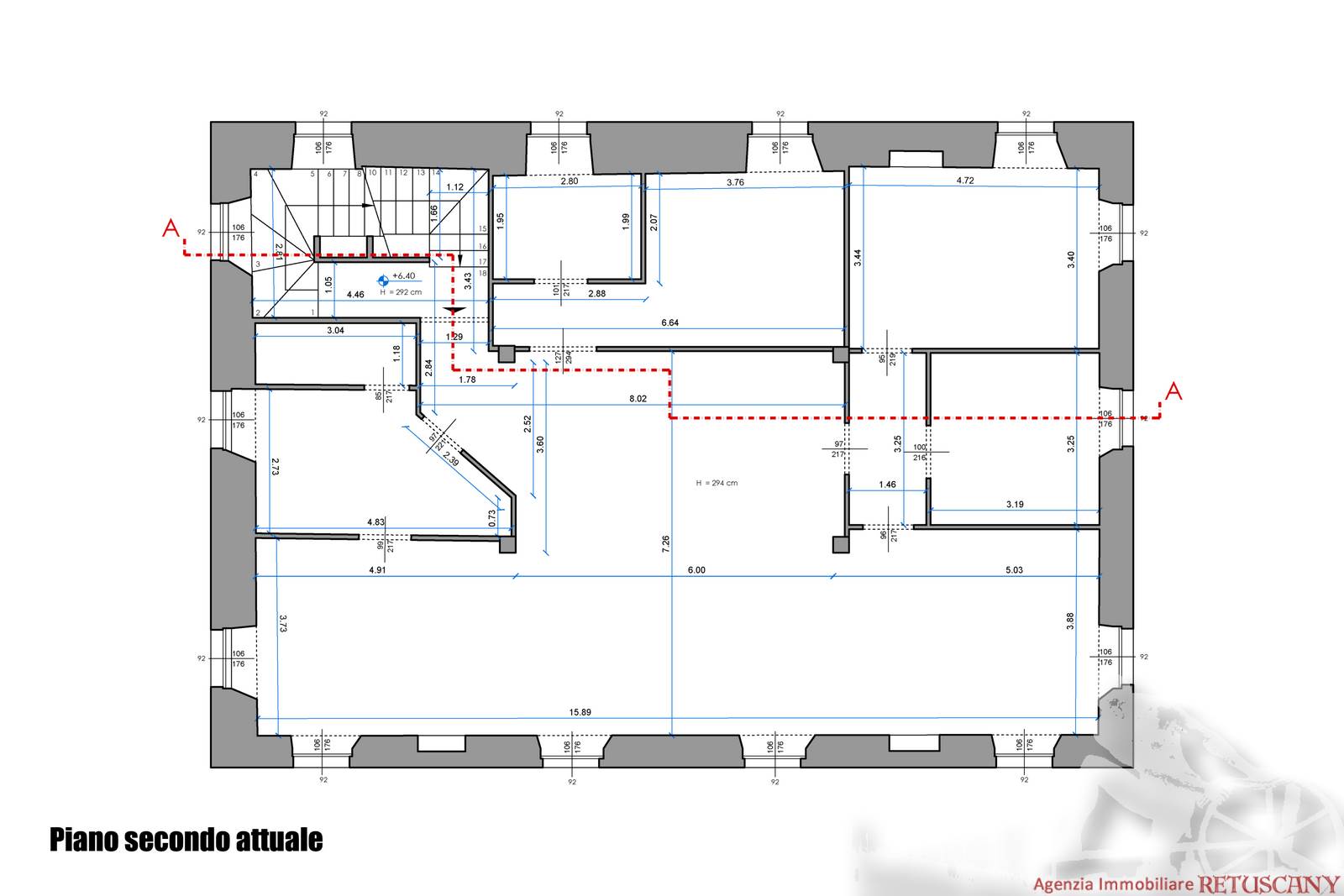
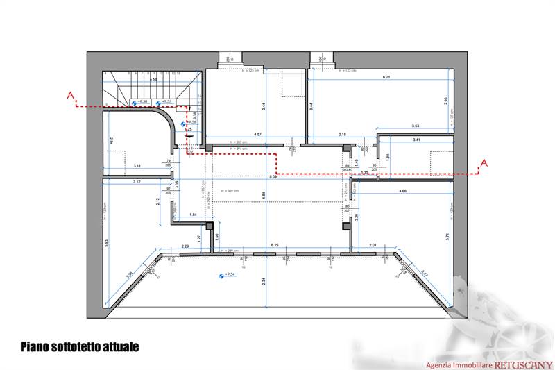
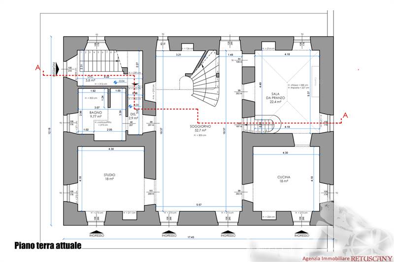
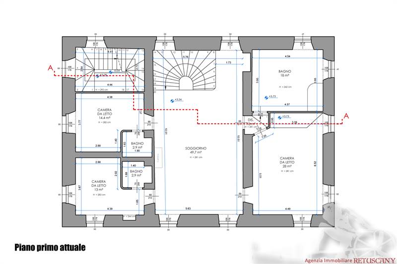
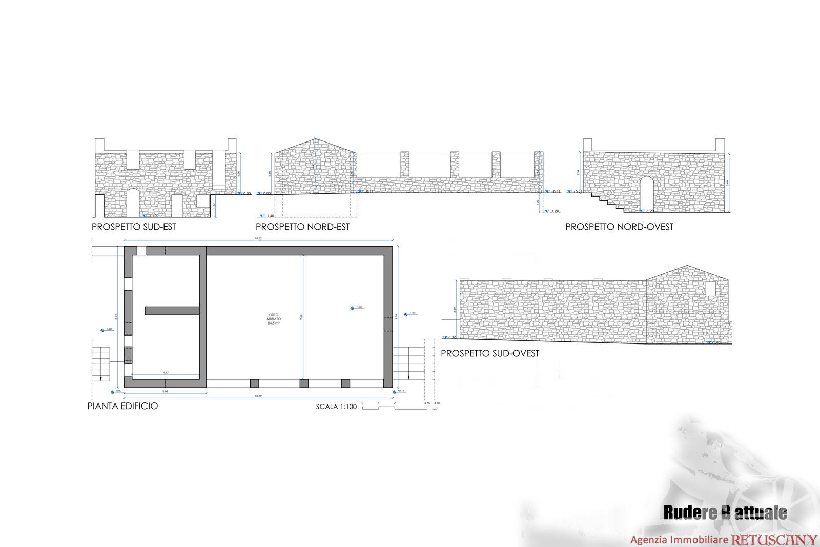
NOSTRA ESCLUSIVA: Complesso immobiliare unico in posizione dominante sopra la collina di Ameglia con splendida vista panoramica sulla valle del fiume Magra, sulle Alpi Apuana e sul mare fino a Forte dei Marmi, a meno di quattro chilometri dal porticciolo turistico di Bocca di Magra. Il complesso comprende una villa singola e due ruderi rurali. La villa è distribuita su tre piani fuori terra oltre al sottotetto e all'interrato, di complessivi 880 mq circa. I due ruderi rurali, entrambi distribuiti su due piani fuori terra, aventi una superficie lorda di 96 mq circa, il rudere A, e di 88 mq circa, il rudere B. Tutti gl edifici possono essere liberamente modificati internamente con destinazioni residenziali o turistico ricettive. Terreno di pertinenza di circa 21.000 mq. Il complesso è in pessime stato di manutenzione e necessità di un completo restauro e recupero.
Caratteristiche principali
Codice:
V003274
Città:
Ameglia (Costa)
Categoria:
Villa
Locali:
20
Camere:
8
Bagni:
9
Mq:
1064
Posti auto:
8
Mq Giardino:
21000
Anno:
1930
Classe energetica:
Non classificabile
Stato Immobile:
Da Ristrutturare
Grado:
Signorile
Posizione:
Collina
Panorama:
Vista Mare
Orientamento:
Nord Ovest Sud Est
Lati Liberi:
4
Giardino:
Privato
Arredi:
Non Arredato
Tipo Soggiorno:
Doppio
Tipo Cucina:
Abitabile
Riscaldamento:
No
Acqua Calda:
Assente
Raffrescamento:
No
Infissi:
Legno
Serramenti:
Da Sostituire
Persiana:
Persiana Legno
Accessori
Ingresso Indipendente
Tavolini Esterni
Richiedi informazioni
Invia
Cookie preference